Калитки для 3D ограждений

Калитки - элемент входной группы устанавливаемого сетчатого ограждения, предназначены для контроля прохода на огороженную территорию. По периметру объекта может быть установлено несколько входных групп, в зависимости от потребностей заказчика. Калитки могут быть оборудованы системой контроля доступа (СКУД) для оптимизации пропускного режима.

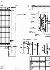
Заполнение створки калитки

Профильная труба
3D сетка
Плоская сварная панель

Преимущества калиток для 3д и 2Д ограждений:

  • Каждый основной элемент металлического ограждения выполнен из горячеоцинкованного сырья;
  • Вся конструкция покрыта слоем порошково-полиэфирной краски, что надежно защищает конструкцию от коррозийных образований;
  • 3 варианта заполнения полотна;
  • Изготовление калитки под любой размер прохода;
  • Хороший обзор. Калитки для 3д забора не мешают обзору территории.

Калитки для сетчатых ограждений имеют различную комплектацию: столбы, заглушки, петли, замки, задвижки, с перемычками и доборными панелями и пр. Предусмотрена установка различных механизмов запирания- с помощью защелки, задвижки или с использованием навесного замка.

Характеристики
Механизм запирания:
защёлка, задвижка, навесной замок
Цвета стандарт:
Высота, мм:
от 1500 до 2500
Ширина прохода в калитку, мм:
от 800 до 1200
Заполнение:
3D, 2D, плоская карта, профильное

Фотографии применения

Чертежи и схемы

Заполнение полотна калитки

инструменты для проектировщика
  • Альбом технических решений

    Калитки SMART

    Заполнение 3D панель.Установка под бетонирование. Механизм запирания: врезной замок. Ширина проема 1000 мм, высота 1530, 1730, 2030 мм.

    Калитки PROM

    Заполнение плоской панелью или профильной трубой. Различные варианты установки. Ширина 1000, 1200, 1500 мм. Исполнение калитки с врезным замком или с задвижкой. 

  • Revit

    Калитки PROM BARS

    В семейство входит элемент: Калитки серии PROM BARS (заполнение профильной трубой)

    Калитки PROM FENCE (заполнение сварной сеткой)

    В семейство входит элемент: Калитки PROM FENCE (заполнение сварной сеткой)

  • DWG файлы

    Калитки PROM

    Динамические блоки с калитками, заполнение: труба, плоская панель. Разные варианты установки.

  • Model Studio

    Калитка prom BARS

    В семейство входят блоки калиток BARS (заполнение профильной трубой), шириной от 1000 до 1200, высотой от 1500 до 2500.

    Калитка prom FENCE

    В семейство входят блоки калиток FENCE (заполнение сварной сеткой), шириной от 1000 до 1200, высотой от 1500 до 2500.

  • Заявка на ограждения

    В FENSYS с благодарностью относятся к любой обратной связи по качеству нашей продукции или уровню сервиса. Также, с удовольствием примем во внимания любые предложения по улучшению функционала сайта или инструментов в помощь проектировщикам.

    Что вас интересует?
  • Заявка на инженерные ограждения

    Производство сетчатых ограждений для защиты периметра- главное направление в работе производственной компании FENSYS. Просьба указать, какие элементы защитного ограждения Вас интересуют.

    Что вас интересует?
  • Заявка на инженерные ограждения

    Одно из направлений деятельности FENSYS- комплекс инженерно-технических систем и средств безопасности периметра, внедренных в единый центр сбора и обработки информации. Если у Вас есть какие-либо вопросы по работе комплекса, просьба уточнить в комментарии.

    Что вас интересует?
  • Заявка на укрытия от атак дронов

    Физическая защита от БПЛА. Стационарные и переносные конструкции. Укрытия от FENSYS имеют сертификаты качества, продукция прошла все необходимые испытания. Возможна доработка под индивидуальные особенности проекта.

    Что вас интересует?
  • Заявка на инженерные ограждения

    Противотаранный шлагбаум от FENSYS представляет собой автоматический барьер, способный остановить движущееся транспортное средство. На сегодняшний день, существует 2 вида барьеров- ПТУ-Л (для транспорта до 3,5 тонн) и ПТУ-Т (для транспорта до 20 тонн).

    Что вас интересует?
  • Заявка на инженерные ограждения

    Постоянное развитие компании FENSYS заключается также, в создании удобных инструментов для проектирования на основе нашей продукции. Если у Вас есть какие- либо вопросы, связанные с проектированием защитных ограждений с помощью наших наработок- задайте их в коментарии.

    Что вас интересует?

У вас есть проект?

Перетащите файлы проекта сюда
pdf, dwg, doc, step или xls
    Или нажмите кнопку