Ворота для сетчатых ограждений

ВИДЫ ВОРОТ

Сетчатые ворота служат средством обозначения проходной зоны, а также, надежным препятствием на пути несанкционированного проезда автомобильной техники на охраняемую территорию.

Распашные ворота

Откатные ворота (открывание влево, и вправо)

Максимальный уровень безопасности достигается за счет прозрачности всей возводимой конструкции, в том числе, на участках входных групп. Охранные структуры используют высокую обзорность как внутри объекта, так и снаружи.

Заполнение полотна может производиться как из сетки аналогично панелям, так и из прямоугольных профильных труб.

3D сетка
Профильная труба
Плоская панель

По способу открывания различают ворота:

  • автоматические (ворота с электроприводом);
  • с ручным открыванием.

Ширина проезда в ворота варьируется от 3х до 12ти метров, в зависимости от потребностей для ограждения охраняемого объекта.

Серии ворот производства FENSYS:

  • PROM FENCE;
  • PROM BARS;
  • SMART.
Оформление заказа напрямую от производителя позволяет получить продукцию по самой выгодной цене, без наценки от посредников. Для уточнения стоимости и сроков изготовления ворот - оставляйте заявку через форму обратной связи или позвоните нам.
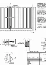
Характеристики
Цвета стандарт
Механизм запирания:
защёлка, задвижка, навесной замок, блокировка электропривода
Высота, мм:
от 1500 до 2500
Ширина проезда в ворота, мм:
от 3000 до 12000
Заполнение:
3D, 2D, плоская карта, профильное

Фотографии применения

Дополнительные элементы

Варианты заполнения

Способ монтажа

инструменты для проектировщика
  • Альбом технических решений

    Распашные ворота PROM

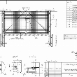
    Заполнение плоской панелью или профильной трубой. Установка под бетонирование. Ширина 2000, 2500, 3000, 3500. Высота от 1100 до 3000 с шагом 100 мм. Профиль створки 60х40, профиль столба 80х80.

    Откатные ворота PROM

    Заполнение плоской панелью или профильной трубой. Ширина от 3000, 3500, 4000, 4500 мм, высота от 1500 до 2500 с шагом 100 мм. Профиль створки 60х60. Профиль столба 100х100 мм. Установка опоры на фланце.

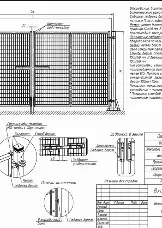
    Распашные ворота SMART

    Заполнение - панель для 3D ограждения. Установка- под бетонирование. Ширина проема 3000, 3500, 4000, 4500 мм, высота 1530, 1730, 2030 мм. 

  • Revit

    Распашные ворота PROM UL BARS

    В семейство входит элемент: Распашные ворота PROM UL BARS (заполнение- профильная труба)

    Распашные ворота PROM UL FENCE

    В семейство входит элемент: Распашные ворота PROM UL FENCE (заполнение- плоская карта)

    Распашные ворота PROM UM BARS

    В семейство входит элемент: Распашные ворота PROM UM BARS (заполнение- профильная труба)

  • DWG файлы

    Ворота распашные PROM

    Блоки стандартных распашных ворот с установкой на фланец, под бетонирование, либо на армокаркасс.

    Ворота откатные

    Динамические блоки откатных ворот с шириной от 3 до 9,5 м.

  • Model Studio

    Ворота распашные FENCE

    В семейство входят блоки распашных ворот FENCE (заполнение сварной сеткой), шириной от 3000 до 5000, высотой от 1500 до 2500.

    Ворота распашные BARS

    В семейство входят блоки распашных ворот BARS (заполнение профильной трубой), шириной от 3000 до 5000, высотой от 1500 до 2500

    Откатные ворота BARS

    В семейство входят блоки откатных ворот BARS (заполнение профильной трубой) шириной от 3000 до 10000, высотой от 1500 до 2500.

  • Заявка на ограждения

    В FENSYS с благодарностью относятся к любой обратной связи по качеству нашей продукции или уровню сервиса. Также, с удовольствием примем во внимания любые предложения по улучшению функционала сайта или инструментов в помощь проектировщикам.

    Что вас интересует?
  • Заявка на инженерные ограждения

    Производство сетчатых ограждений для защиты периметра- главное направление в работе производственной компании FENSYS. Просьба указать, какие элементы защитного ограждения Вас интересуют.

    Что вас интересует?
  • Заявка на инженерные ограждения

    Одно из направлений деятельности FENSYS- комплекс инженерно-технических систем и средств безопасности периметра, внедренных в единый центр сбора и обработки информации. Если у Вас есть какие-либо вопросы по работе комплекса, просьба уточнить в комментарии.

    Что вас интересует?
  • Заявка на укрытия от атак дронов

    Физическая защита от БПЛА. Стационарные и переносные конструкции. Укрытия от FENSYS имеют сертификаты качества, продукция прошла все необходимые испытания. Возможна доработка под индивидуальные особенности проекта.

    Что вас интересует?
  • Заявка на инженерные ограждения

    Противотаранный шлагбаум от FENSYS представляет собой автоматический барьер, способный остановить движущееся транспортное средство. На сегодняшний день, существует 2 вида барьеров- ПТУ-Л (для транспорта до 3,5 тонн) и ПТУ-Т (для транспорта до 20 тонн).

    Что вас интересует?
  • Заявка на инженерные ограждения

    Постоянное развитие компании FENSYS заключается также, в создании удобных инструментов для проектирования на основе нашей продукции. Если у Вас есть какие- либо вопросы, связанные с проектированием защитных ограждений с помощью наших наработок- задайте их в коментарии.

    Что вас интересует?

У вас есть проект?

Перетащите файлы проекта сюда
pdf, dwg, doc, step или xls
    Или нажмите кнопку