Технические решения для ограждений FENSYS

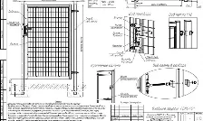
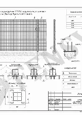
Данный раздел содержит альбом технических решений ограждений периметра. Ниже, Вы найдете подробные схемы по установке систем защиты периметра, различные варианты крепления (хомут или скоба) и монтажа столбов оснований.

Способы обхода перепад высот, стыковка металлических конструкций с калитками и воротами, способы установки модульного ограждения из профильных труб- Техограда.

Крепление дополнительных элементов усиления периметрального ограждения:

  • L- образные насадки;
  • Y- образные насадки;
  • Крепление АКЛ к насадкам.

Способы установки сетчатого ограждения на поворотах, примыкание конструкции к стене и другие полезные схемы. 

Ограждения 3D

3D ограждения, дополнительные элементы, стыковка входных групп и основы конструкции. Различные варианты установки: опоры с фланцем на анкерное крепление, опоры под бетонирование, опоры под винтовую опоры. Решение по перепадам высот и стыковке входных групп и ограждения.  

Калитки SMART

Заполнение 3D панель.Установка под бетонирование. Механизм запирания: врезной замок. Ширина проема 1000 мм, высота 1530, 1730, 2030 мм.

Калитки PROM

Заполнение плоской панелью или профильной трубой. Различные варианты установки. Ширина 1000, 1200, 1500 мм. Исполнение калитки с врезным замком или с задвижкой. 

Распашные ворота PROM

Заполнение плоской панелью или профильной трубой. Установка под бетонирование. Ширина 2000, 2500, 3000, 3500. Высота от 1100 до 3000 с шагом 100 мм. Профиль створки 60х40, профиль столба 80х80.

Откатные ворота PROM

Заполнение плоской панелью или профильной трубой. Ширина от 3000, 3500, 4000, 4500 мм, высота от 1500 до 2500 с шагом 100 мм. Профиль створки 60х60. Профиль столба 100х100 мм. Установка опоры на фланце.

Распашные ворота SMART

Заполнение - панель для 3D ограждения. Установка- под бетонирование. Ширина проема 3000, 3500, 4000, 4500 мм, высота 1530, 1730, 2030 мм. 

Ограждение "Техограда"

Защитные ограждения "Техограда", различные варианты сборки, стыковки углов, антивандальные решения. Высота секции 2000 мм, ширина секции 2500 мм. Различные варианты исполнения: "Безопасный", "Безопасный с 3мя направляющими", "Строгий".

Калитки PROM-T

Заполнение сварной сеткой 1D, ячейка 50х100 мм. Врезной замок, регулируемые петли. Установка под бетонирование. Ширина проема 1000 и 1200 мм, высота от 1400 до 2500 мм.

Ворота распашные PROM-T

Воргота распашные универсальные, заполнение: сварная 1D панель, установка под бетонирование. Ширина от 3000 до 6000 мм, высота от 1500 до 2500 мм.

BIM- Проект 3Д забора для мясокомбината

Типовой проект забора для ограждения мясокомбината. БИМ- семейства (rvt формат): входные группы, углы (повороты). Смотреть видео- инструкцию по проектированию 3Д забора для школы на основе продукции FENSYS

Объекты, реализованные нашей компанией:

Чертежи

Способы монтажа

  • Заявка на ограждения

    В FENSYS с благодарностью относятся к любой обратной связи по качеству нашей продукции или уровню сервиса. Также, с удовольствием примем во внимания любые предложения по улучшению функционала сайта или инструментов в помощь проектировщикам.

    Что вас интересует?
  • Заявка на инженерные ограждения

    Производство сетчатых ограждений для защиты периметра- главное направление в работе производственной компании FENSYS. Просьба указать, какие элементы защитного ограждения Вас интересуют.

    Что вас интересует?
  • Заявка на инженерные ограждения

    Одно из направлений деятельности FENSYS- комплекс инженерно-технических систем и средств безопасности периметра, внедренных в единый центр сбора и обработки информации. Если у Вас есть какие-либо вопросы по работе комплекса, просьба уточнить в комментарии.

    Что вас интересует?
  • Заявка на укрытия от атак дронов

    Физическая защита от БПЛА. Стационарные и переносные конструкции. Укрытия от FENSYS имеют сертификаты качества, продукция прошла все необходимые испытания. Возможна доработка под индивидуальные особенности проекта.

    Что вас интересует?
  • Заявка на инженерные ограждения

    Противотаранный шлагбаум от FENSYS представляет собой автоматический барьер, способный остановить движущееся транспортное средство. На сегодняшний день, существует 2 вида барьеров- ПТУ-Л (для транспорта до 3,5 тонн) и ПТУ-Т (для транспорта до 20 тонн).

    Что вас интересует?
  • Заявка на инженерные ограждения

    Постоянное развитие компании FENSYS заключается также, в создании удобных инструментов для проектирования на основе нашей продукции. Если у Вас есть какие- либо вопросы, связанные с проектированием защитных ограждений с помощью наших наработок- задайте их в коментарии.

    Что вас интересует?

У вас есть проект?

Перетащите файлы проекта сюда
pdf, dwg, doc, step или xls
    Или нажмите кнопку