Сетчатые ограждения для спортивных площадок на территории школы

Серия 3Д ограждений «Пифагор» отличается высокой устойчивостью силовым ударам. Ограждения разработаны с учётом возможных горизонтальных нагрузок, таких как попадание спортивного инвентаря и столкновение игроков с плоскостью панелей и столбов. Металлический периметр имеет повышенную прочность за счет использования горизонтальных ригелей усиления.
Ограждения по периметру спортивной площадки школы выполняют несколько задач:
- Предотвращение вылета спортивного инвентаря за территорию игровой зоны;
- Обозначение места проведения спортивных обучающих мероприятий;
Серия сетчатых ограждений «Пифагор» была разработана сепециально для спортивных площадок на территории городских школ по запросу Департамента капитального ремонта Москвы и Департамента образования.
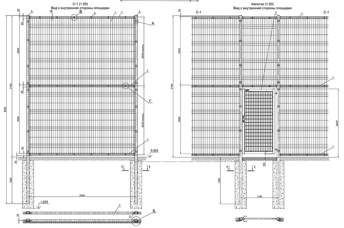
В зависимости от запроса заказчика, конструкция предпологает несколько вариантов высоты ограждения- 3 или 4 метра. В основе ограждения 3D панели, усиленные вертикальными и горизонтальными ригелями сечением 60х60х2 и массивные столбы- основания 80х80х3 мм.

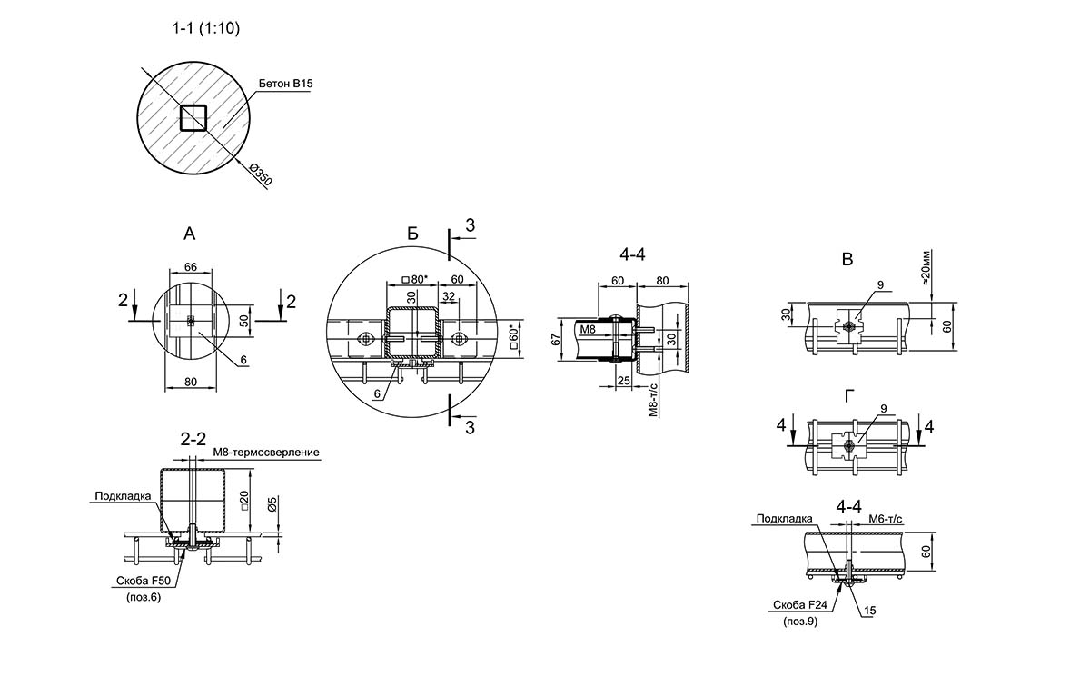
Состав крепежных элементов:
|
Крепление ригеля- усиления к столбу:
|
|
|
Крепление 3Д панели к ригелю- усиления:
|
|
|
Крепление 3Д панели к столбу:
|
Применение ограждения "ПИФАГОР":
Сочетание горячего цинкования и полиэфирного порошкового покрытия обеспечивает максимальную антикоррозийную защиту, значительно продлевая срок службы металлоконструкций.
Универсальная конструкция, изначально разработанная для установки на территории школьных спортивных площадок, может применяться для любых объектов спортивной тематики, таких как скейт-парки, площадки во дворе многоквартирного дома, стадионы, площадки для пляжного волейбола и другие.
В ассортименте FENSYS также представлена альтернативная серия ограждений для спортивных объектов- SPORTLINE. Её отличие от «Пифагора» в отсутствии ригелей и применении усиленного прутка 2D.